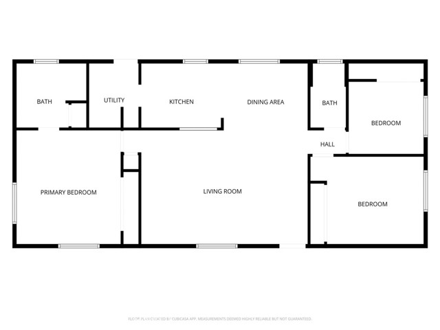
This 3-bedroom, 2-bath home offers 1,248 square feet of comfortable living with a split-bedroom layout. The spacious living room provides plenty of room to relax or entertain, while the primary suite is thoughtfully positioned on one side of the home for added privacy, with two additional bedrooms and a second bath on the opposite side. The kitchen is spacious with an eating area and ample storage, and the indoor laundry room adds everyday convenience. Ceiling fans and central heating and air help keep the home comfortable year-round. A newer roof is a great bonus, offering peace of mind for the next owner. Outside, you’ll find a covered carport along with a covered patio area—perfect for enjoying outdoor time in any season. The home does need a bit of cosmetic updating, but it offers solid bones and a great opportunity to add your own touches and build value. A well-laid-out home with space, function, and potential—ready for its next chapter.
MLS #
CRSN25277383
MLS Source
California Regional MLS
Days on Site
0
Bedrooms
Primary Suite/Retreat
Appliances
Dishwasher, Hood Over Range, Other, Oven Range - Gas, Refrigerator, Dryer, Washer
Flooring
Laminate
Laundry
Other
Cooling
Central Forced Air
Heating
Central Forced Air
Foundation
Raised
Pool
Heated, None
Garage/Parking
Carport, RV Access, Garage: 0 Car(s)
Elementary District
Chico Unified
High School District
Chico Unified
Unit Levels
One
Sewer
Septic Tank
HOA Fee
$0
1595 Manzanita 48 is a Manufactured In Park in Chico, CA 95926. This 1,248 square foot property sits on a – Sq Ft Lot and features 3 bedrooms & 2 full bathrooms. It is currently priced at $80,000 and was built in 1983. This address can also be written as 1595 Manzanita #48, Chico, CA 95926.
©2025 California Regional MLS. All rights reserved. All data, including all measurements and calculations of area, is obtained from various sources and has not been, and will not be, verified by broker or MLS. All information should be independently reviewed and verified for accuracy. Properties may or may not be listed by the office/agent presenting the information. Information provided is for personal, non-commercial use by the viewer and may not be redistributed without explicit authorization from California Regional MLS.
Presently MLSListings.com displays Active, Contingent, Pending, and Recently Sold listings. Recently Sold listings are properties which were sold within the last three years. After that period listings are no longer displayed in MLSListings.com. Pending listings are properties under contract and no longer available for sale. Contingent listings are properties where there is an accepted offer, and seller may be seeking back-up offers. Active listings are available for sale.
This listing information is up-to-date as of December 17, 2025. For the most current information, please contact Heather Cooper