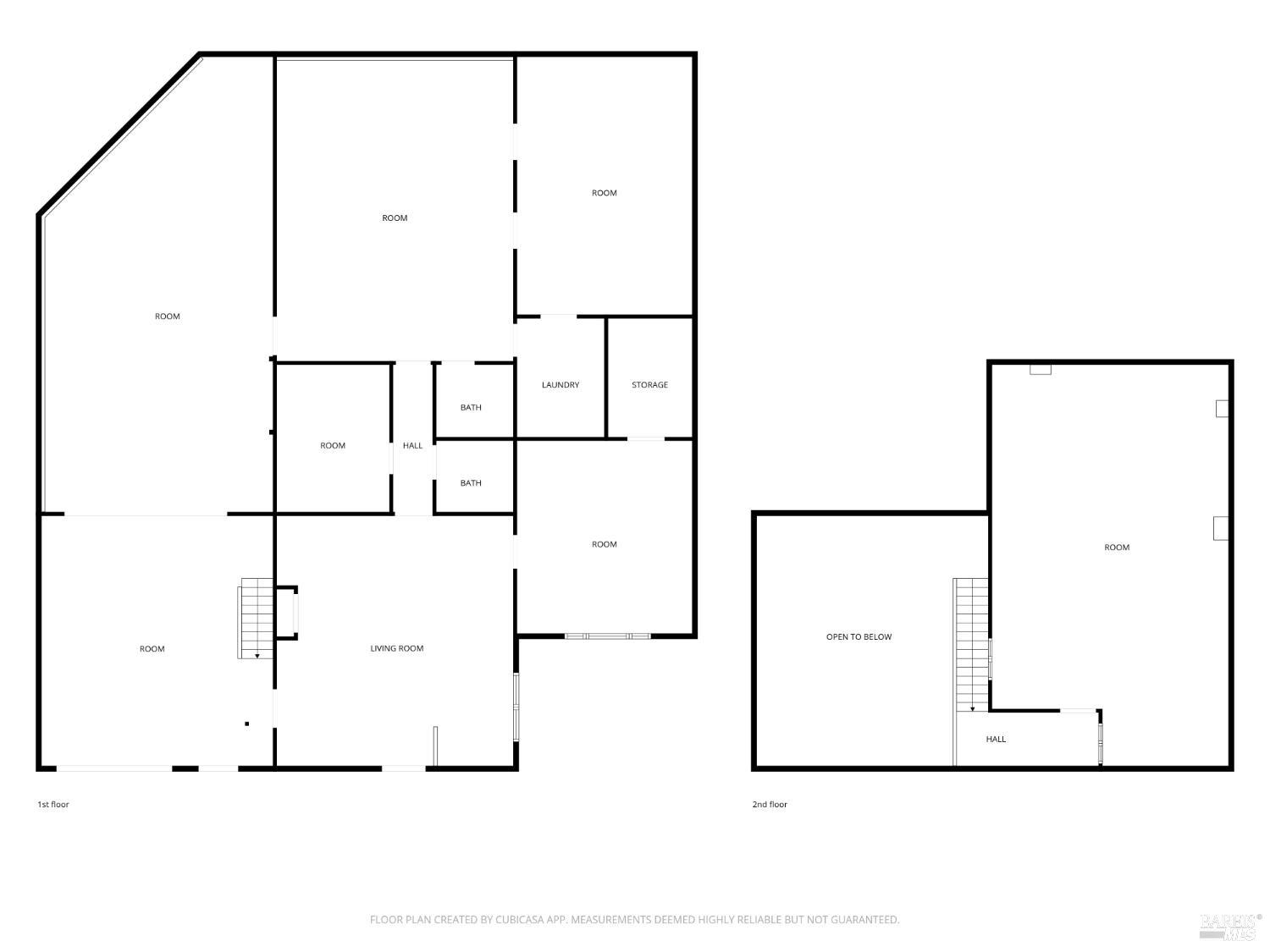
9550 Main Street presents a rare opportunity to acquire a substantial commercial holding in the heart of historic downtown Penngrove. This five unit building occupies a prominent position along Main Street with excellent visibility, steady local traffic, and immediate access to the core amenities that make Penngrove such a unique and highly regarded community. The property includes twenty one coveted on site spaces and is zoned Limited Commercial, allowing a wide range of neighborhood serving uses such as retail, professional services, restaurants with permits, personal services, and potential mixed use or live work configurations. A new roof was installed approximately two years ago and the occupied units are home to strong long term tenants, providing dependable income and stability for an investor or owner user. The rear unit, totaling roughly four thousand square feet, is currently vacant and offers a combination of warehouse and office space. Features include a twelve foot roll up door, three phase power, and an additional seven hundred square foot mezzanine, creating an ideal environment for a wide variety of commercial or light industrial uses. This flexibility makes the property well suited for an owner operator looking for on site space while benefiting from the incom
MLS #
BA325103443
MLS Source
Bay Area Real Estate Information Services, Inc.
Days on Site
0
# Buildings / # Units
1 / 0
Loading Facility
_12ftRollUpDoor
Parking Spaces
21
Present Use
Office, Retail
Flooring
Concrete
| # Buildings | # Leased Units | # Total Units |
|---|---|---|
| 1 | – | 0 |
9550 Main St is a Commercial Sale in Penngrove, CA 94951. This 7,780 square foot property sits on a 0.516 Acres Lot and features – bedrooms & – full bathrooms. It is currently priced at $1,500,000 and was built in 0. This address can also be written as 9550 Main St, Penngrove, CA 94951.
©2025 Bay Area Real Estate Information Services, Inc. All rights reserved. All data, including all measurements and calculations of area, is obtained from various sources and has not been, and will not be, verified by broker or MLS. All information should be independently reviewed and verified for accuracy. Properties may or may not be listed by the office/agent presenting the information. Information provided is for personal, non-commercial use by the viewer and may not be redistributed without explicit authorization from Bay Area Real Estate Information Services, Inc.
Presently MLSListings.com displays Active, Contingent, Pending, and Recently Sold listings. Recently Sold listings are properties which were sold within the last three years. After that period listings are no longer displayed in MLSListings.com. Pending listings are properties under contract and no longer available for sale. Contingent listings are properties where there is an accepted offer, and seller may be seeking back-up offers. Active listings are available for sale.
This listing information is up-to-date as of December 17, 2025. For the most current information, please contact Aaron Loewenthal, (707) 477-6427